
CASA JK
Dapa, Colombia
DETALLES DEL PROYECTO
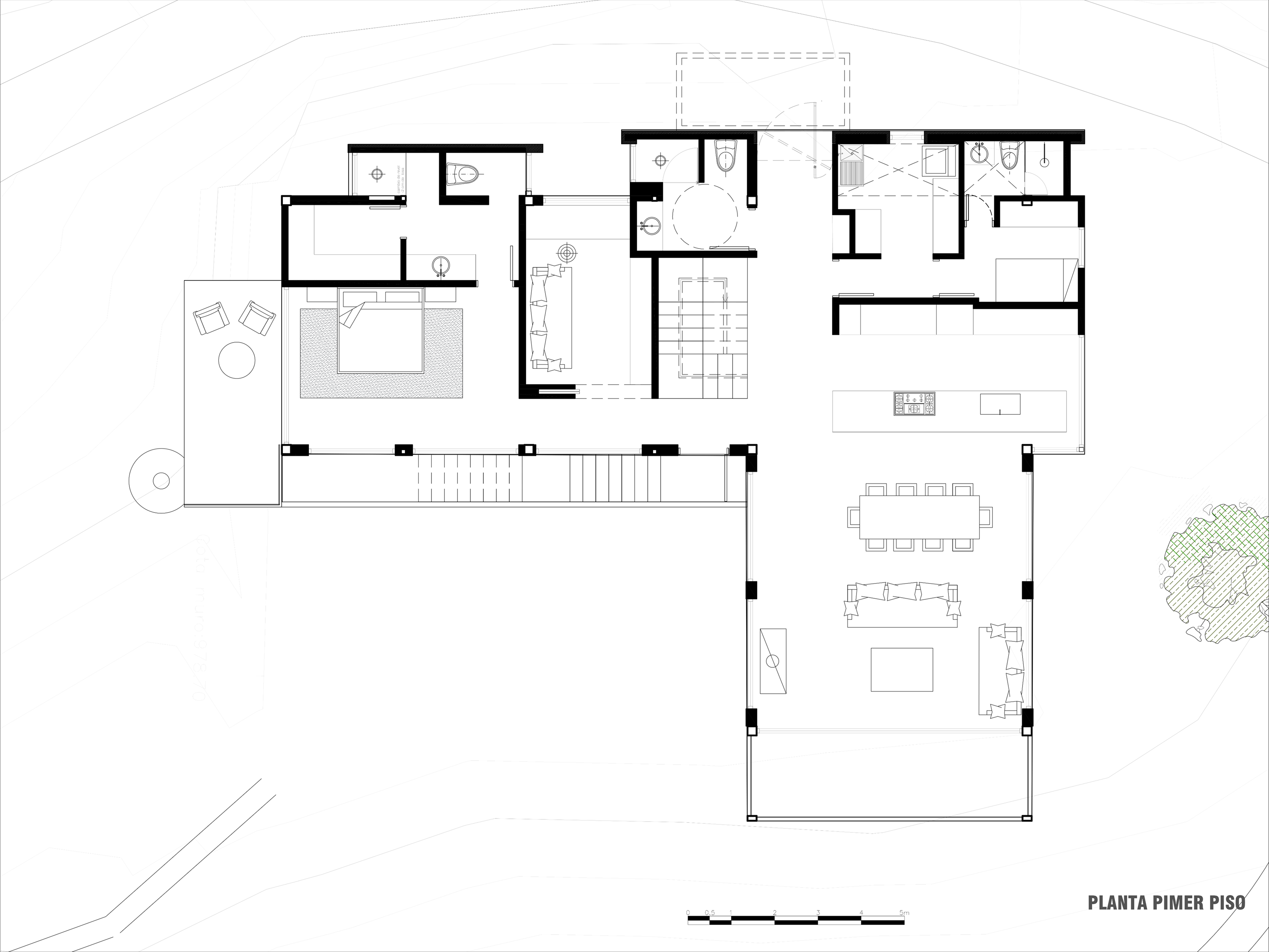
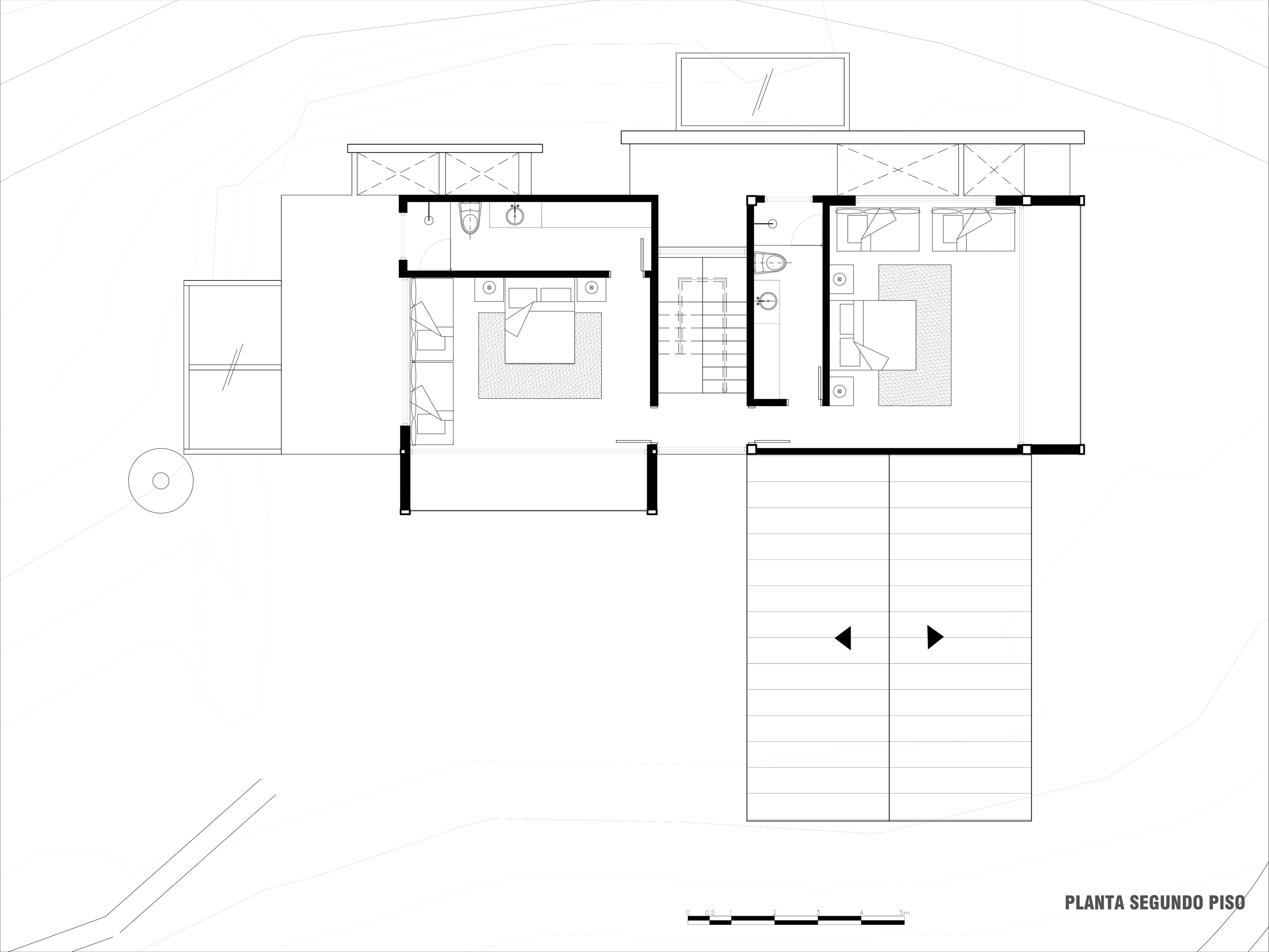
Casa en la cima de una montaña sobre un reducido espacio plano. Para ajustar la estructura, elevamos el edificio dejando el primer piso como estacionamiento, la única solución viable para el área de carros en la parte superior. Se diseñaron volúmenes esbeltos, techos inclinados y fachadas translúcidas que potencian la conexión con el entorno natural, maximizando vistas y luz. Utilizamos materiales como vidrio, madera tratada y estructuras metálicas expuestas, buscando integración paisajística y eficiencia térmica. Las terrazas permiten una transición fluida entre interior y exterior, favoreciendo la ventilación cruzada. Los amplios ventanales y fachadas de vidrio resaltan la conexión con el paisaje, mientras que los techos inclinados y detalles en madera aportan calidez y carácter contemporáneo.
GALERÍA DE FOTOS







Plans and elevations
















